ЕП/ЕПП - 40 М³ производство подземных дренажных емкостей для Республики Карелия

Республика Карелия предъявляет особые требования к инженерным системам из-за климатических и геологических условий региона. Высокий уровень грунтовых вод, пучинистые грунты и продолжительные зимы создают риски для строительных конструкций и инфраструктурных объектов. Подземные дренажные емкости объемом 40 м³ из полиэтилена низкого давления (ПНД) представляют собой эффективное решение для сбора и отведения ливневых, талых и дренажных вод на промышленных, коммерческих и муниципальных объектах Карелии.
Почему полиэтилен низкого давления (ПНД) оптимален для подземных емкостей в Карелии
Полиэтилен низкого давления (HDPE) — материал с линейной молекулярной структурой, обеспечивающей высокую прочность и химическую стойкость . Для условий Северо-Запада России критически важны следующие свойства ПНД:
Морозостойкость и эластичность при низких температурах. ПНД сохраняет ударную вязкость при температурах до -70°C, что исключает хрупкое разрушение емкости при промерзании грунта или замерзании воды внутри резервуара . При циклическом замерзании и оттаивании материал не теряет прочностных характеристик.
Химическая стойкость к агрессивным средам. Полиэтилен высокой плотности инертен к кислотам, щелочам, солям и нефтепродуктам, что особенно важно при сборе ливневых стоков с промышленных территорий, автозаправочных станций и автомобильных дорог .
Абсолютная влагостойкость. ПНД не впитывает влагу и не подвержен коррозии, в отличие от металлических и железобетонных конструкций . Это свойство гарантирует герметичность емкости на протяжении всего срока эксплуатации.
Длительный срок службы. Производители заявляют эксплуатационный ресурс изделий из ПНД 50–70 лет при соблюдении правил монтажа и эксплуатации .
Экологическая безопасность. Материал не выделяет вредных веществ в грунт и грунтовые воды, а по окончании срока службы подлежит вторичной переработке .
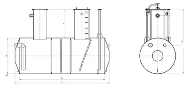
Технические характеристики подземных дренажных емкостей ЕП/ЕПП-40 М³
Емкости объемом 40 кубических метров относятся к категории средних резервуаров и применяются на объектах различного масштаба — от промышленных площадок до жилых микрорайонов и транспортной инфраструктуры. Основные технические параметры представлены в таблице:
Характеристика | Значение |
|---|---|
Геометрический объем | 40 м³ |
Диаметр | 2,8 м |
Длина | 6,5 м |
Толщина стенки | 14–18 мм (зависит от модификации) |
Масса | ≈ 500 кг |
Материал | Полиэтилен низкого давления (ПНД / HDPE) |
Плотность материала | 930–970 кг/м³ |
Температура эксплуатации | от -50 до +60 °C |
Прочность на сжатие | до 80 т/м² |
Расчетный срок службы | не менее 50 лет |
Технология производства. Емкости изготавливаются методом ротационного формования, что обеспечивает монолитность корпуса — отсутствие швов и стыков исключает риск протечек даже при циклических нагрузках от подвижек грунта.
Дополнительная комплектация. В зависимости от проектных требований емкости могут оснащаться:
лазом для технического обслуживания диаметром 600–800 мм;
фланцевыми патрубками для подключения трубопроводов;
поплавковыми датчиками уровня;
насосным оборудованием для принудительной откачки;
системами автоматического управления.

Особенности проектирования дренажных систем в условиях Карелии
Климатические и геологические факторы
Республика Карелия расположена в северо-западной части России и характеризуется следующими параметрами, влияющими на проектирование подземных сооружений:
Продолжительная зима со средней температурой января от -10 до -14 °C и возможными понижениями до -35 °C.
Высокий уровень грунтовых вод (УГВ). В Петрозаводске, расположенном на берегу Онежского озера, УГВ часто находится на глубине менее 1,5 метра от поверхности.
Пучинистые грунты, характерные для значительной части территории республики, создающие неравномерные нагрузки на подземные конструкции при сезонном промерзании и оттаивании.
Обильные осадки в течение всего года, требующие эффективного отвода поверхностных и дренажных вод.
Нормативные требования
Проектирование дренажных систем и подземных емкостей должно выполняться с учетом требований действующих сводов правил. Основополагающим документом является СП 104.13330.2016 «Инженерная защита территории от затопления и подтопления» (актуализированная редакция СНиП 2.06.15-85) . Документ устанавливает требования к:
выбору средств инженерной защиты в зависимости от гидрогеологических условий;
проектированию дренажных систем различного типа;
организации отвода поверхностных вод;
мониторингу эффективности защитных сооружений.
При размещении емкостей в зонах с высоким уровнем грунтовых вод требуется выполнение расчетов на всплытие (анкеровку) и применение соответствующих конструктивных решений — бетонных пригрузов или грунтового обжатия.
Проектирование и монтаж: этапы работ
Инженерное проектирование под конкретный объект
Качественная дренажная система начинается с профессионального проектирования, учитывающего:
результаты инженерно-геологических изысканий на площадке;
гидрогеологический режим территории (сезонные колебания УГВ);
характер и интенсивность поступления сточных вод;
существующие и перспективные нагрузки от транспорта и застройки;
глубину сезонного промерзания грунта.
Для проектировщиков и строительных организаций предоставляются:
3D-модели емкостей для интеграции в общую модель объекта;
чертежи узлов подключения и деталировки;
расчетные схемы нагрузок;
рекомендации по анкеровке и балластировке.
Технология монтажа подземных полимерных емкостей
Монтаж емкостей ЕП/ЕПП-40 М³ занимает 1–2 дня и выполняется в следующей последовательности:
Разработка котлована. Размеры котлована должны превышать габариты емкости на 0,5–0,8 м с каждой стороны для обеспечения доступа при монтаже и засыпке. Дну придается проектный уклон в сторону подключения трубопроводов.
Устройство основания. На дно котлована укладывается песчаная или песчано-щебневая подушка толщиной 20–30 см с послойным уплотнением. Основание должно быть строго горизонтальным (для вертикальных емкостей) или с проектным уклоном (для горизонтальных).
Установка емкости. Благодаря малому весу (около 500 кг) монтаж может выполняться с использованием малогабаритной техники — манипуляторов или автокранов небольшой грузоподъемности. Емкость выставляется по уровню с контролем проектных отметок.
Подключение трубопроводов. Входные и выходные патрубки соединяются с трубопроводами системы дренажа. Для соединения могут применяться сварные или фланцевые соединения.
Обратная засыпка. Засыпка выполняется послойно (через 20–30 см) песком или мелким щебнем с тщательным уплотнением. В зонах высокого УГВ или пучинистых грунтов рекомендуется использовать песчаную засыпку для демпфирования нагрузков.
Проверка герметичности. После завершения монтажа проводится гидравлическое испытание системы.
Пуско-наладочные работы и сервисное обслуживание
Комплекс пуско-наладочных работ включает:
проверку герметичности всех соединений;
настройку насосного оборудования и автоматики (при наличии);
тестирование системы в различных режимах;
инструктаж эксплуатирующего персонала.
Гарантийные обязательства составляют 5 лет и распространяются на производственные дефекты емкости. По дополнительному соглашению возможно заключение договора на сервисное обслуживание, включающее периодический осмотр, очистку, диагностику и текущий ремонт.
Сравнение полимерных и железобетонных дренажных емкостей
Традиционно для дренажных систем применялись сборные железобетонные колодцы и резервуары. Однако современные полимерные решения обладают рядом преимуществ:
Параметр | Полимерная емкость (ПНД) | Железобетонная конструкция |
|---|---|---|
Герметичность | Монолитная конструкция — 100% | Требуется герметизация стыков, риск протечек |
Масса | ~500 кг | 5–10 тонн |
Срок монтажа | 1–2 дня | 3–7 дней |
Коррозионная стойкость | Полная | Подвержена химической коррозии |
Морозостойкость | Высокая, сохраняет эластичность | Снижается при циклическом замерзании |
Сопротивление пучению грунта | Демпфирует нагрузки | Жесткая конструкция, возможны трещины |
Необходимость гидроизоляции | Отсутствует | Требуется наружная и внутренняя |
Срок службы | 50+ лет | 25–40 лет (до капремонта) |
Экономическая эффективность: анализ совокупной стоимости владения
При оценке долгосрочных затрат полимерные решения демонстрируют существенно лучшие показатели:
Статья затрат (за 10 лет эксплуатации) | Полимерная емкость | Железобетонная конструкция |
|---|---|---|
Приобретение емкости | 380 000 руб. | 320 000 руб. |
Монтажные работы | 80 000 руб. | 150 000 руб. |
Эксплуатационное обслуживание | 50 000 руб. | 200 000 руб. |
Ремонтные работы | 20 000 руб. | 300 000 руб. |
ИТОГО | 530 000 руб. | 970 000 руб. |
Таким образом, совокупная стоимость владения полимерной емкостью за 10 лет на 45% ниже по сравнению с железобетонным аналогом при более высокой надежности и меньшем количестве простоев.
Отраслевое применение в Республике Карелия


Промышленность
На предприятиях горнодобывающей, лесоперерабатывающей и целлюлозно-бумажной промышленности емкости 40 м³ применяются для сбора ливневых и талых вод с промышленных площадок, предотвращая загрязнение грунтовых вод и подтопление фундаментов. Крупнейшие промышленные центры — Петрозаводск, Костомукша, Сегежа, Кондопога, Питкяранта.
Транспортная инфраструктура
На объектах транспортной инфраструктуры (автозаправочные станции, автостоянки, автовокзалы, железнодорожные узлы) емкости обеспечивают сбор загрязненных нефтепродуктами стоков с последующей очисткой. Особое значение это имеет в Беломорске, Медвежьегорске, Сортавале — транспортных узлах республики.
Жилищное строительство
В новых микрорайонах и коттеджных поселках Петрозаводска, Олонца, Суоярви дренажные системы с полимерными емкостями защищают фундаменты зданий и подземные коммуникации от подтопления.
Муниципальные объекты
Для городов и поселков Карелии характерна проблема отвода ливневых вод с селитебных территорий. Подземные дренажные емкости интегрируются в системы ливневой канализации, обеспечивая аккумуляцию и последующий сброс стоков в водосточную сеть или на очистные сооружения.
Заключение
Подземные дренажные емкости из полиэтилена низкого давления объемом 40 м³ представляют собой технически обоснованное и экономически эффективное решение для инфраструктурных объектов Республики Карелия. Их применение позволяет:
обеспечить надежный сбор и отвод поверхностных и дренажных вод;
защитить фундаменты зданий и инженерные коммуникации от подтопления;
минимизировать риски, связанные с пучинистыми грунтами и высоким УГВ;
снизить долгосрочные эксплуатационные затраты;
гарантировать экологическую безопасность при работе с жидкими средами.
Проектирование, поставка и монтаж оборудования выполняются с учетом индивидуальных особенностей каждого объекта, климатических условий региона и требований действующих нормативных документов. Полный цикл сопровождения — от инженерных изысканий до пусконаладки и сервисного обслуживания — обеспечивает надежную работу дренажной системы на протяжении всего срока эксплуатации.